Skip to main content Skip to footer

Design, Equipment Specification, & Supply to increase kitchen capability

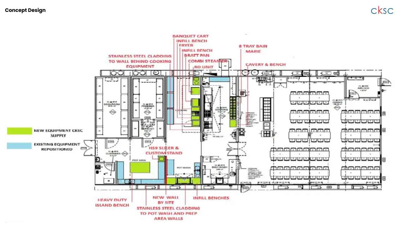
Client’s kitchen has insufficient production capacity to meet the Village occupancy. CKSC provided recommendations to increase cooking capacity, servery capacity and introduce pot wash facilities. 

Scope

  • Provide kitchen designs, layout and equipment specifications to meet forecasted occupancy.
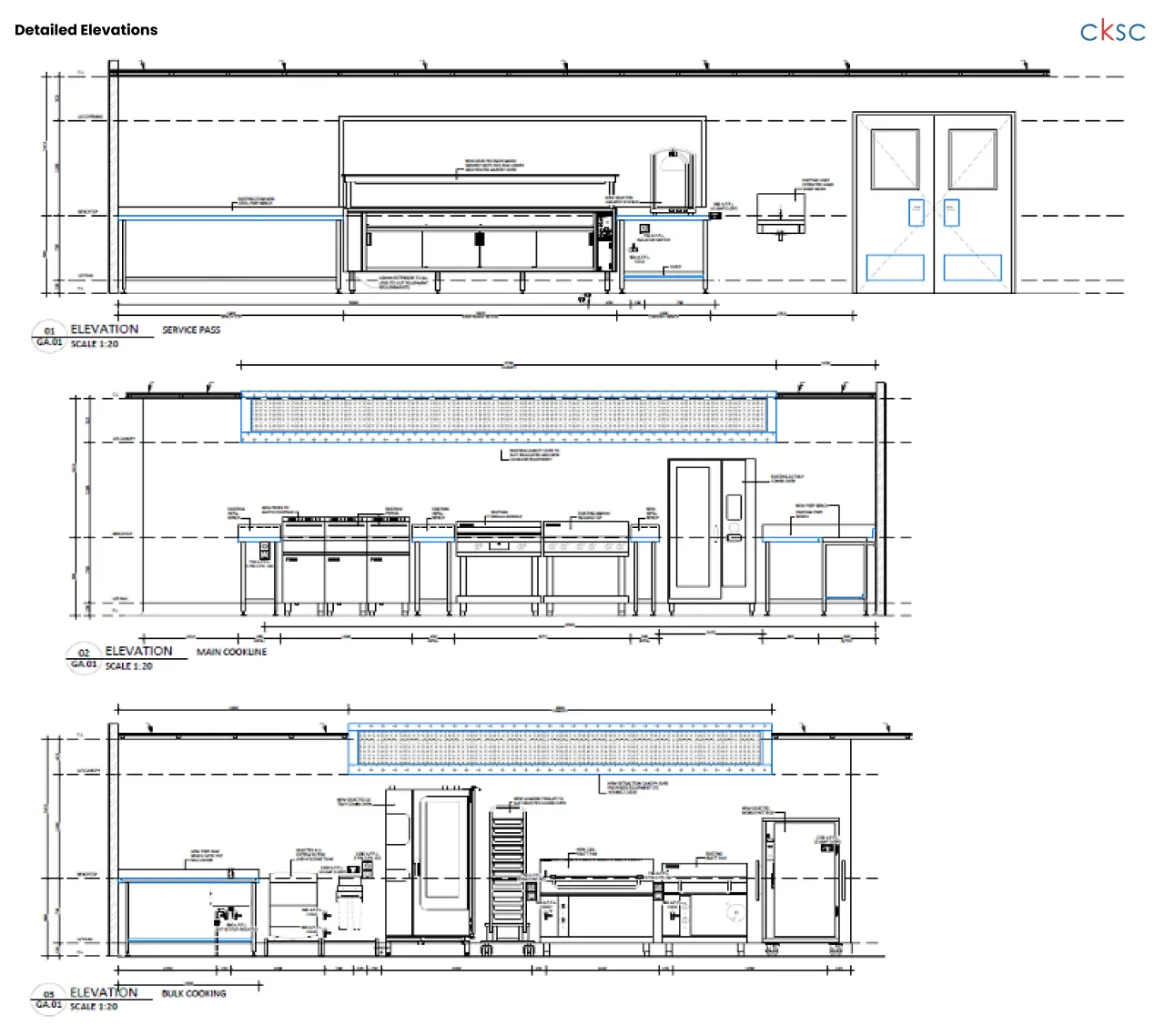
  • Provide full suite of technical drawings (layout, elevation, services and equipment).
  • Increase cooking capacity, and supply new cooking equipment
  • Design new pot wash facilities, and supply equipment.
  • Design new dedicated preparation space.
  • Supply new stainless-steel benching.
  • Supply new stainless steel wall cladding, including thermal backed cladding for cooking areas.
  • Supply new hot servery and carving station.

CKSC has a dedicated skilled team able to assist you with identification, sourcing and supply of spare parts for all types of Commercial Kitchen & Laundry Equipment.

Cookie consent

Learn how we use cookies on this website.